









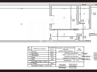
Agentia SUDIMOB va propune spre achizitie un apartament de 2 camere decomandat si terasa de 13 mp cu acces din bucatarie si living intr-un ansamblu rezidential nou de 4 niveluri cu lift situat pe Drumul Fermei langa parcul Laurentiu Raiciu. Apartamentul dispune de incalzire in pardoseala, tamplarie PVC cu geam tripan si va fi predat la cheie cu finisaje alese de dumneavoastra.
Acces rapid catre metrou Leonida, soseaua Oltenitei, STB.
In proximitate avem scoli, gradinite, parc, centre comerciale.
Locuri de parcare terane disponibile contra cost - 7.000 Euro + TVA 21 %.
Pretul afisat este pentru plata cash cu avans de 90 %. Se accepta si credit cu avans de 15 % la pretul de 102.200 Euro.Preturile afisate au TVA inclus de 21 %.
Termen de finalizare cu mutare si acte iunie 2026.
Pentru detalii si vizionare va stau la dispozitie Iulian o769.03.04.06