









Va propun spre vanzare un apartament cu doua camere tip penthouses pe strada Sf. Agnes in Popesti Leordeni. Zona este una linistita cu acces rapid catre Sos. Oltenitei, dar si catre Soseaua Berceni si statia de metrou.
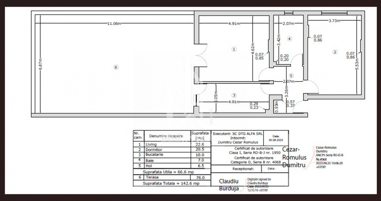
Apartamentul are doua camere spatioase si luminoase, bucatarie generoasa, baia are ventilatie naturala, iar terasa de 76mp este ceva spectaculos.
Blocul a fost finalizat in anul 2024, are 3 etaje cu pod deasupra si beneficiaza de lif de ultima generatie.
Suprafata apartament-67mp
Suprafata terasa-76mp
Pret-110.000 euro+TVA (133.100 TVA inclus)
Loc parcare-10.000 euro
Pentru mai multe detalii nu ezitati sa sunat! o727 946 606- Nicolae