









Agentia SUDIMOB va propune spre achizitie o casa individuala situata pe soseaua Leordeni.
Casa dispune de tamlparie PVC cu geam tripan, incalzire in parsoseala si se va preda la cheie cu finisaje alese de dumneavoastra.
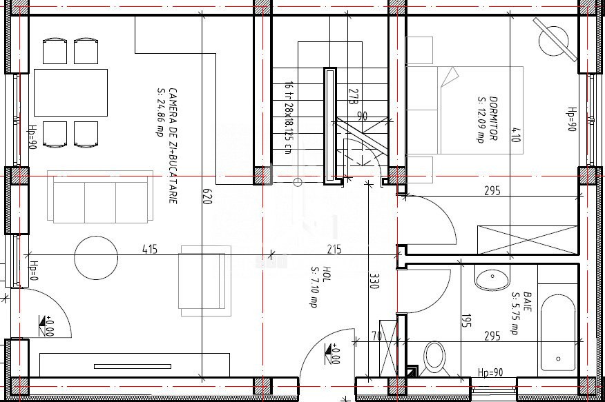
Pe parter avem living cu bucatarie open space, dormitor, baie cu geam si acces catre curte.
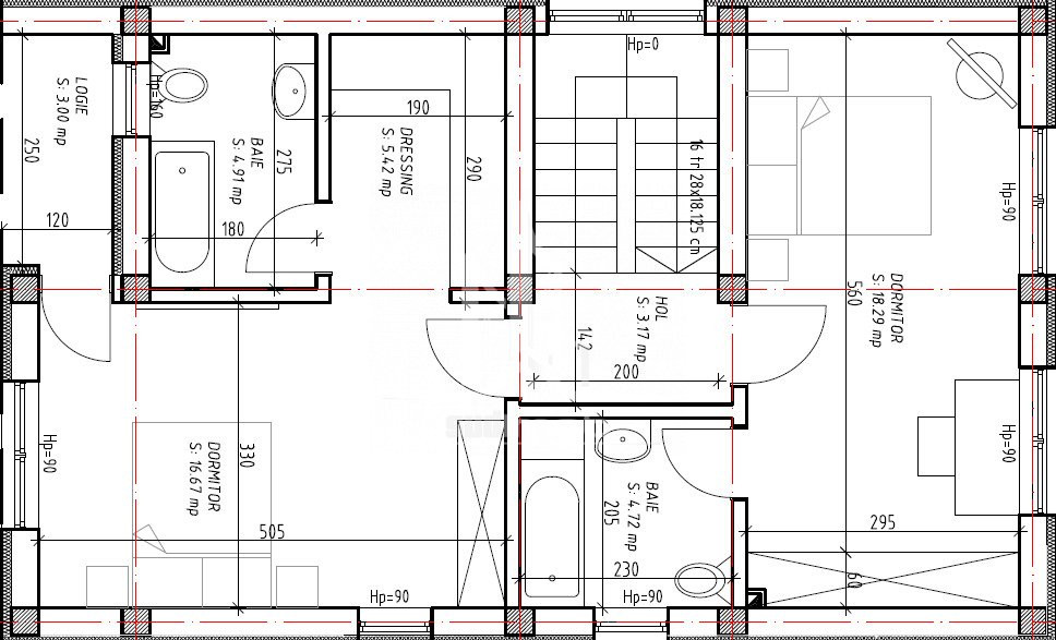
La etaj avem 2 dormitoare, ambele cu baie proprie. Unul dintre cele 2 dormitoare dispune de dressing si balcon.
Deasupra etajului 1 avem placa de beton turnata si acces catre pod.
Curte libera 230 mp. 2 locuri de parcare.
Toate utilitatile la reteaua orasului, contorizari individuale.
Pretul afisat include TVA de 21 %.
Acte gata, mutare imediat.
Pentru detalii si vizionare - Iulian o769.03.04.06