



















Casa este finalizata- acte la zi.
Va prezint spre vanzare o casa individuala situata in cea mai buna zona a comunei Berceni, pe strada Padurea Craiului, la doar doua 3 minute de mers cu masina pana la statia de metrou Tudor Arghezi.
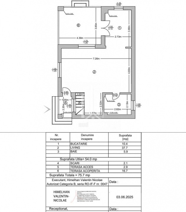
Casa a fost finalizata in anul 2025, este compusa din 4 camere spatioase si luminoase. Casa este finisata premium si este racordata la gaz si la curent.
Compartimentarea este una practica pentru a va putea folosi de fiecare spatiu al casei.
La parter avem un livig de 38mp, o bucatarie spatioasa de peste 10mp, baie cu cabina de dush dar si o terasa acoperita pentru servit masa in aer liber de cca 17mp.
La etaj avem e dormitoare spatioase dintre care doua au baie proprie. De asemea avemmutiple spatii pentru depozitare.
Acces rapid la mijloacele de transport(STV si Metrou).
Suprafata utila-126mp
Suprafata terase-20mp
Suparafata totala-146mp
Suprafata teren-308mp
Regim de inaltime-P+M
Pret-195.000 euro cu TVA inclus.
Pentru mai multe detalii nu ezitati sa sunati- 0727 946 606- Nicolae