














Agentia SUDIMOB va propune spre achizitie o casa insiruita intr-un complex deosebit situat pe strada Pavlicheni.
Casa se va preda la cheie cu finisaje alese de dumneavoastra. Actele sunt pregatite pentru vanzare, se accepta credit, mutare rapida.
Pe parter avem living, bucatarie inchisa, baie de servici cu geam si cabina de dus si acces catre curte. Curte libera 32 mp.
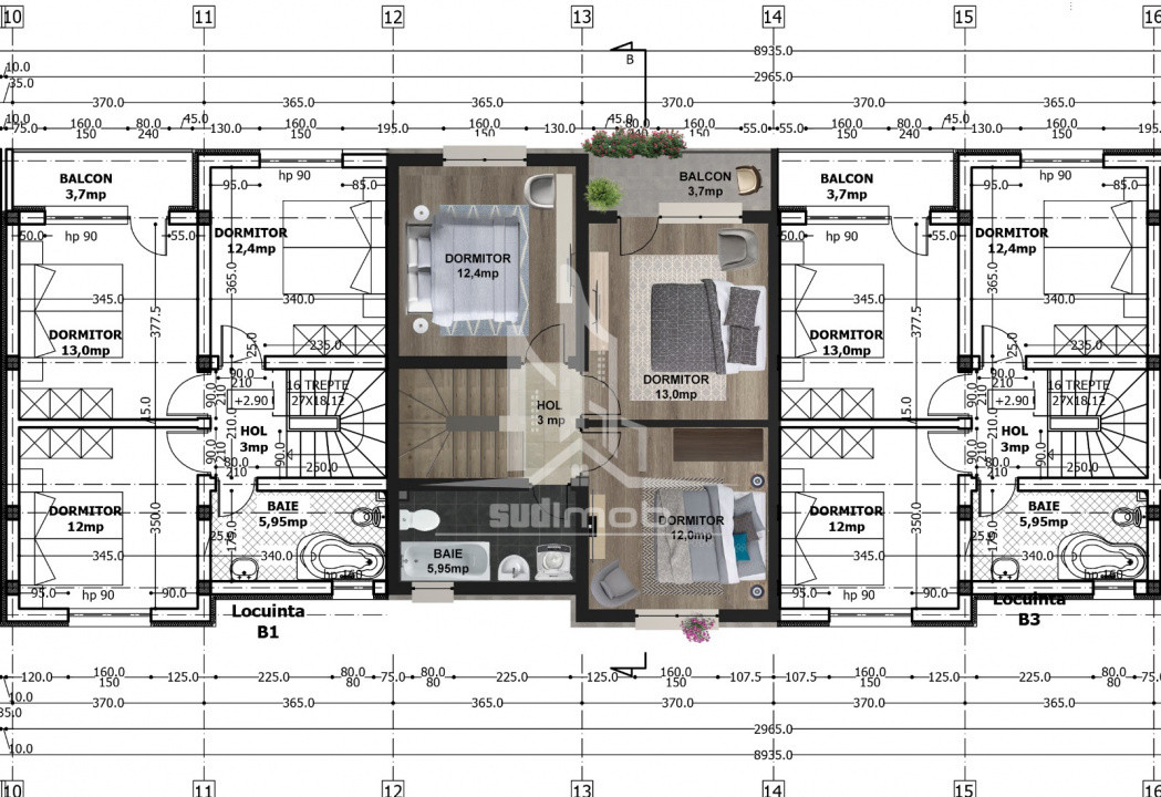
La etajul 1 avem 3 dormitoare si o baie generoasa cu geam. Unul dintre dormitoare dispune si de balcon.
Deasupra etajului 1 avem placa de beton turnata si un pod de 40 mp unde avem trase toate cablajele si tevile necesare in cazul in care vreti sa il faceti locuibil, de asemenea avem si o fereastra tip Velux.
Toate utilitatile la reteaua orasului, contorizari individuale.
Fiecare unitate locativa dispune si de un loc de parcare.
Pretul afisat include TVA de 21 %.
Acte gata, mutare imediat, se accepta credit.
Pentru detalii si vizionare - Iulian o769.03.04.06