


























Agentia SUDIMOB va propune spre achizitie o casa individuala situata la intrare in comuna Berceni pe strada Padurea Craiului.
Casa este construita pe grinzi de beton si compartimentare din Ytong.
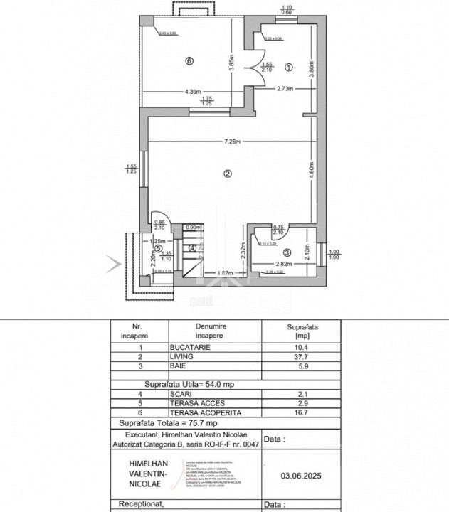
Pe parter avem living de 37 mp, bucatarie de 10 mp cu posibilitate de a se inchide, baie cu cabina de dus si acces catre curte. Curte libera 200 mp.
La etaj avem dormitor matrimonial cu dressing si baie proprie. Dormitorul 2 cu baie proprie si dormitorul 3 cu dressing.
Tamplarie PVC cu geam tripan, centrala proprie cu calorifere, toate baile au geam, finisaje de calitate, contorizari individuale apa, gaz si curent. Fosa septica.
Poze reale. Actele sunt pregatite pentru vanzare, se accepta credit, mutare imediat.
Pretul afisat include TVA de 21%. In czaul in care se achizitioneaza pe firma pretul este de 161.157 Euro.
Pentru detalii si vizionare - Iulian o769.03.04.06