


















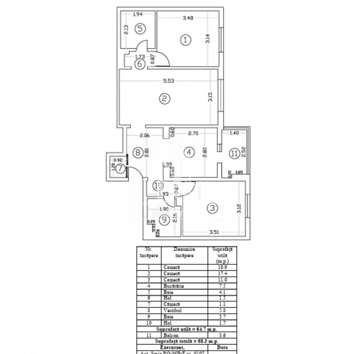
Va propun spre achizitie un apartament de 3 camere semidecomandat cu 2 bai intr-un bloc construit in anul 1982 cu 2 lifturi.
Apartamentul este situat la etajul 7/8, dispune de centrala termica proprie, tamplarie maron PVC cu geam termopan, usi interior celulare, gresie, faianta, parchet, 2 grupuri sanitare, aparat de aer conditionat. Bucataria este mobilata si utilata, iar apartamentul este mobilat aproape complet, dispune de dressing, spatii de depozitare. Este orientat spre vest.
Actele sunt in curs de perfectare. Poze reale. Se accepta credit, mutare imediat.
Loc de parcare inchiriat de la primaria sectorului 4.
COMISION CUMPARATOR 0.
Pentru detalii si vizionare - Iulian o769.03.04.06