








Va propun spre vanzare un apartament cu doua camere tip studio pe str. Biruintei in Popesti Leordeni, la etajul 6 al unu bloc dat in folosinta in anul 2024.
Apartamentul are o compatimentare moderna si nu a fost locuit, blocul este dotat cu lift, scara este intretinuta iar veciniui linistiti.
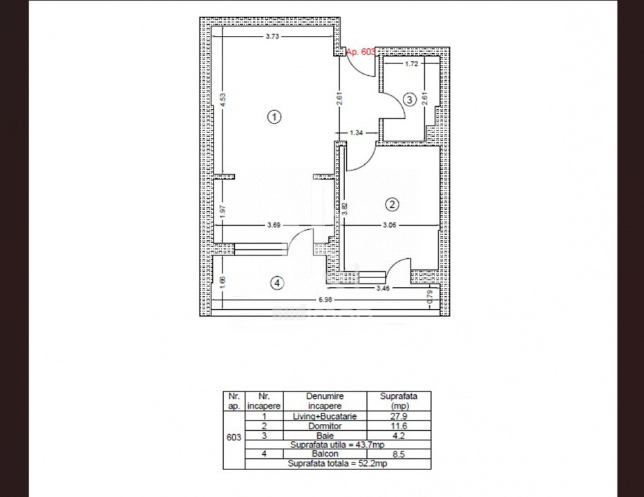
Apartamentul are doua camere luminoase, bucataria open space se incadreaza perfect in livingul de 28mp. Baia este dotata cu cada iar balconu se poate inchide cu tamplarie PVC.
ETAJ-6/6
PRET-94.000 euro
-BLOC DOTAT CU LIFT!
-SE ACCEPTA CREDIT!
-COMIDION 0%!
Pentru mai multe detalii nu ezitati sa ma contactati 0727.946.606- Nicolae