
















Va propun spre vanzare un apartament decomandat pe strada Biruintei cu acces rapid care statia de metrou Berceni.
Apartamentul este complet mobilat si utilat, mobila este Mobexpert facuta pe comanda, electrocasnicele sunt ca noi, iar finisajele sunt extrabuget.
Dispune de doua aparate de aer conditionat tip inverter. Ferestrele sunt dotate cu plase de tantari si rulouri de aluminiu.
Apartamentul nu necesita nici un fel de investitie (veniti doar cu hainele).
In apropiere avem statia de metrou Berceni, parc, scoala, gradinita, marketuri, sala fitness cu piscina, etc.
Optional se poate achizitiona si un loc de parcare contracost.
Etaj-3
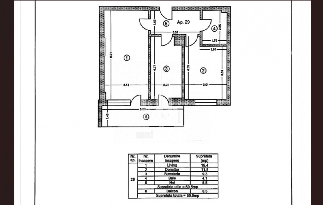
SUPRAFATA-59mp
Pret- 113.500 euro
Pret parcare-6.000 euro
Se accepta credit!
Comision 0%
Mai multe detalii la telefon 0727.946.606- Nicolae