












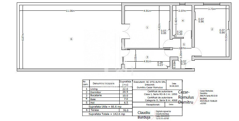
Va propun spre achizitie un apartament de 2 camere decomandat cu bucatarie inchisa si terasa spectaculoasa de 76 mp intr-un bloc de 3 niveluri tip boutique cu lift.
Actele sunt pregatite pentru vanzare, se accepta credit. Poze reale. Mutare imediat.
Deasupra etajului 3 avem placa de beton turnata si pod.
Toate utilitatile la reteaua orasului, contorizari individuale.
Pretul afisat include TVA.
COMISION CUMPARATOR 0.
Loc de parcare cadastrat separat la pretul de 10.000 Euro TVA inclus.
Pentru detalii si vizionare - Iulian o769.03.04.06